Main
Menu
首頁
產品介紹
大型真空腔體加工(AL)
大型鋁合金工件
波浪發電機組-運動模組
高速發酵機
重機大型加工
精密加工產品
生產能量
檢驗能量
關於康柏威
聯絡我們
語言選擇
雲林縣斗六市科加三路10號
compowe@compowe.com.tw
+886 5 5516358
首頁
產品介紹
大型真空腔體加工(AL)
大型鋁合金工件
波浪發電機組-運動模組
高速發酵機
重機大型加工
精密加工產品
生產能量
加工設備
喬崴進 NF4230AC
MAKINO 178-A
TOYODA FH50
IKEGA AH6
SANCO S5F-7000NC
SHIBAURA BF-130AQ
SHIBAURA BF-130ANC
OKUMA MCR-U
FOREST 160
SKODA W-180
精密加工設備
OKK CNC立式綜合切削加工機
OKUMA CNC立式綜合切削加工機
KIWAMI CNC立式綜合切削加工機
DAHLIH CNC立式切削加工機
研發能力&系統整合
檢驗能量
關於康柏威
員工福利
聯絡我們
語言選擇
English
繁體中文
高速發酵機
客戶產品要求
自動化設備
產品結構
CPM-010 1T高速發酵機
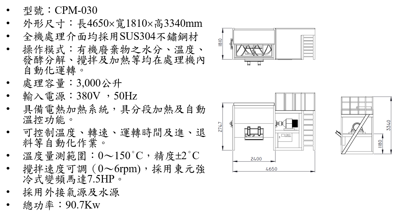
CPM-030 3T高速發酵機
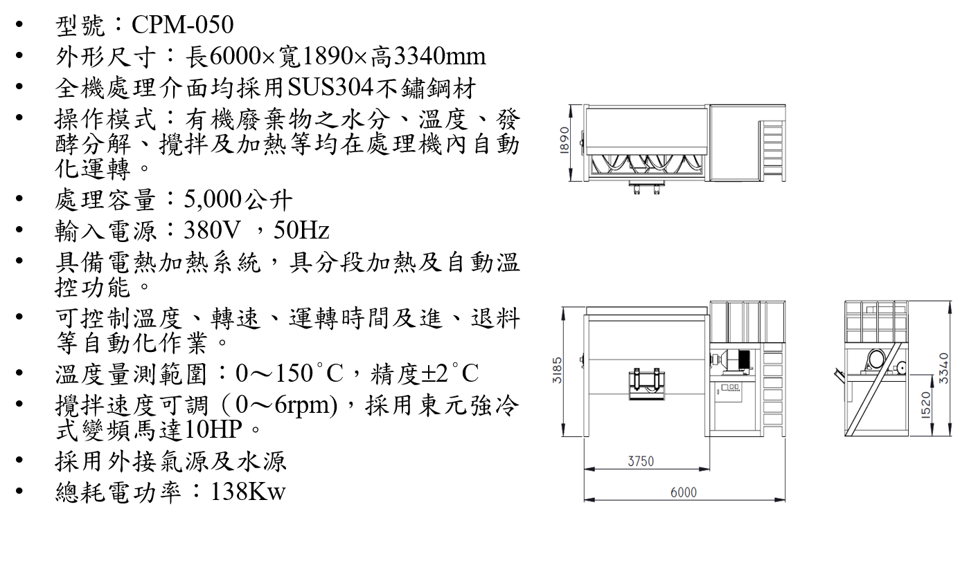
CPM-050 5T高速發酵機
CPM-100 10T高速發酵機